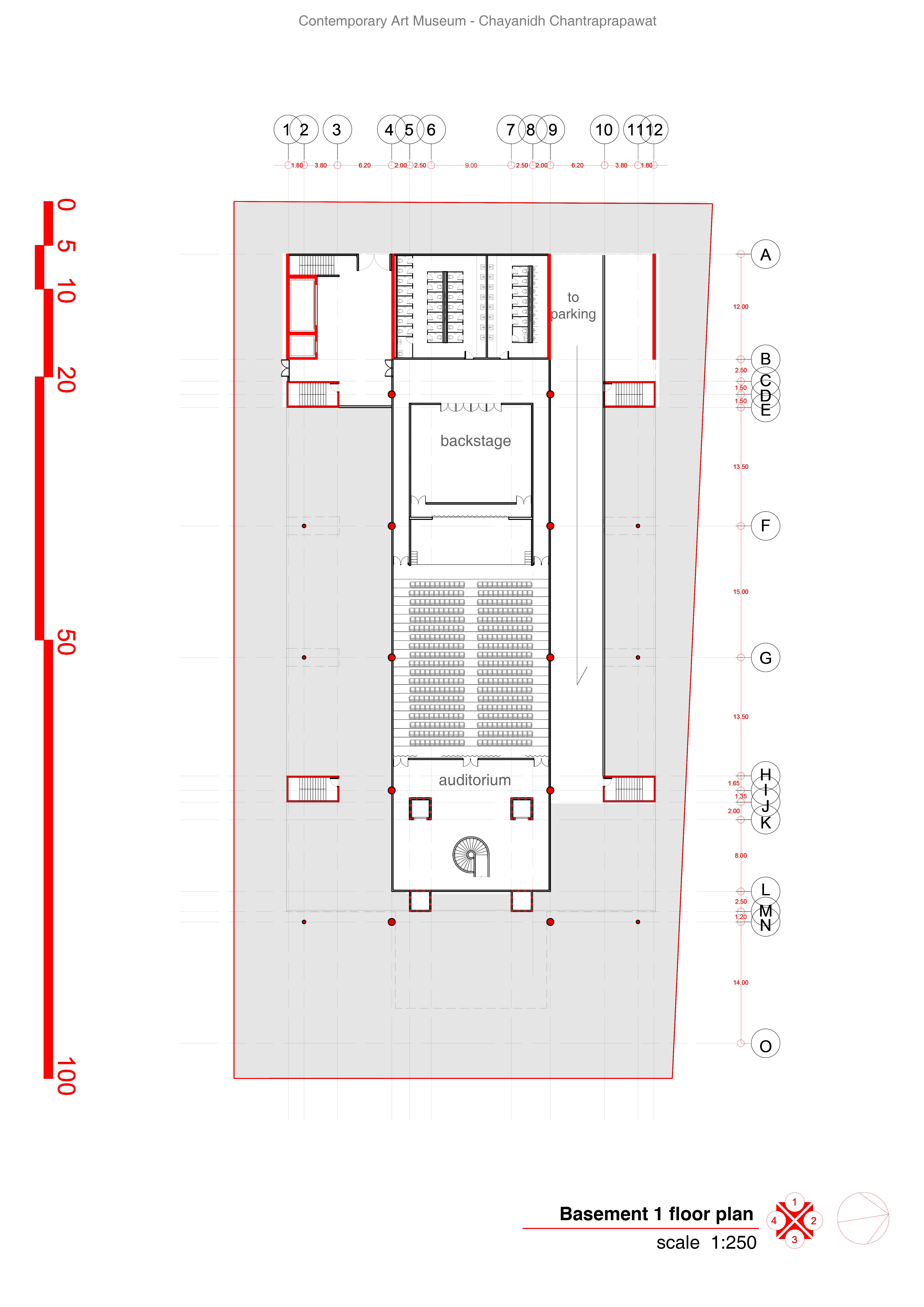
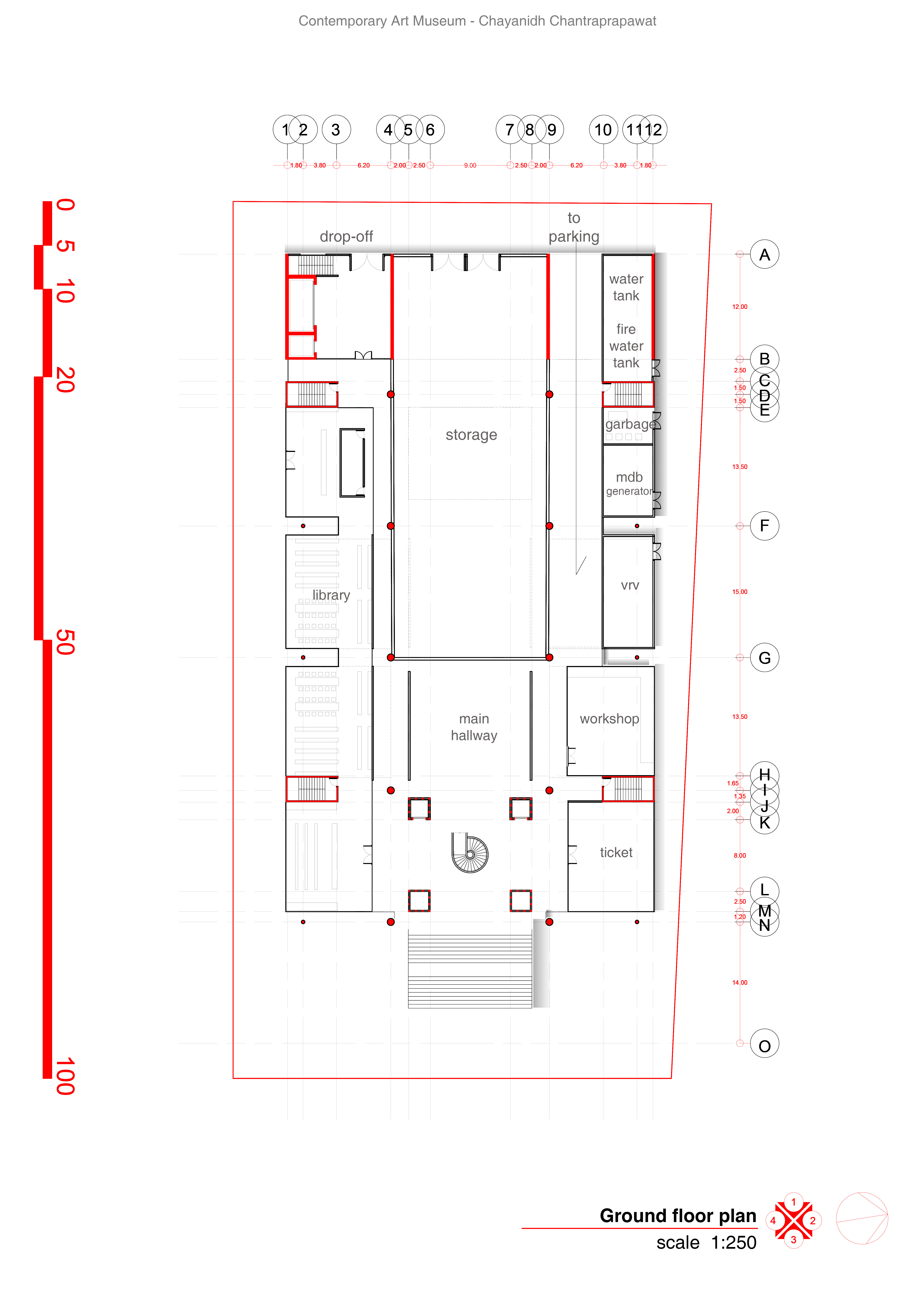
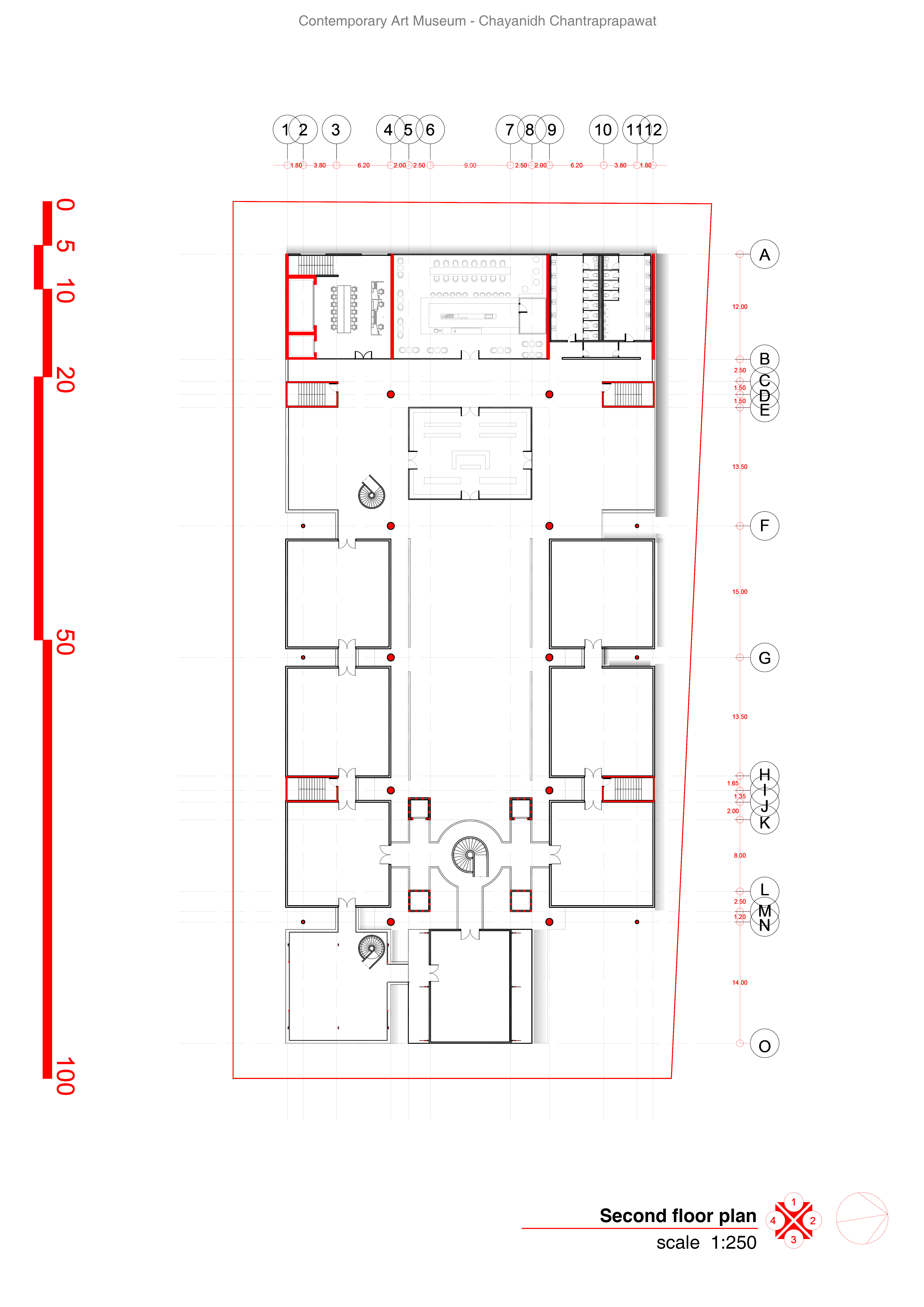
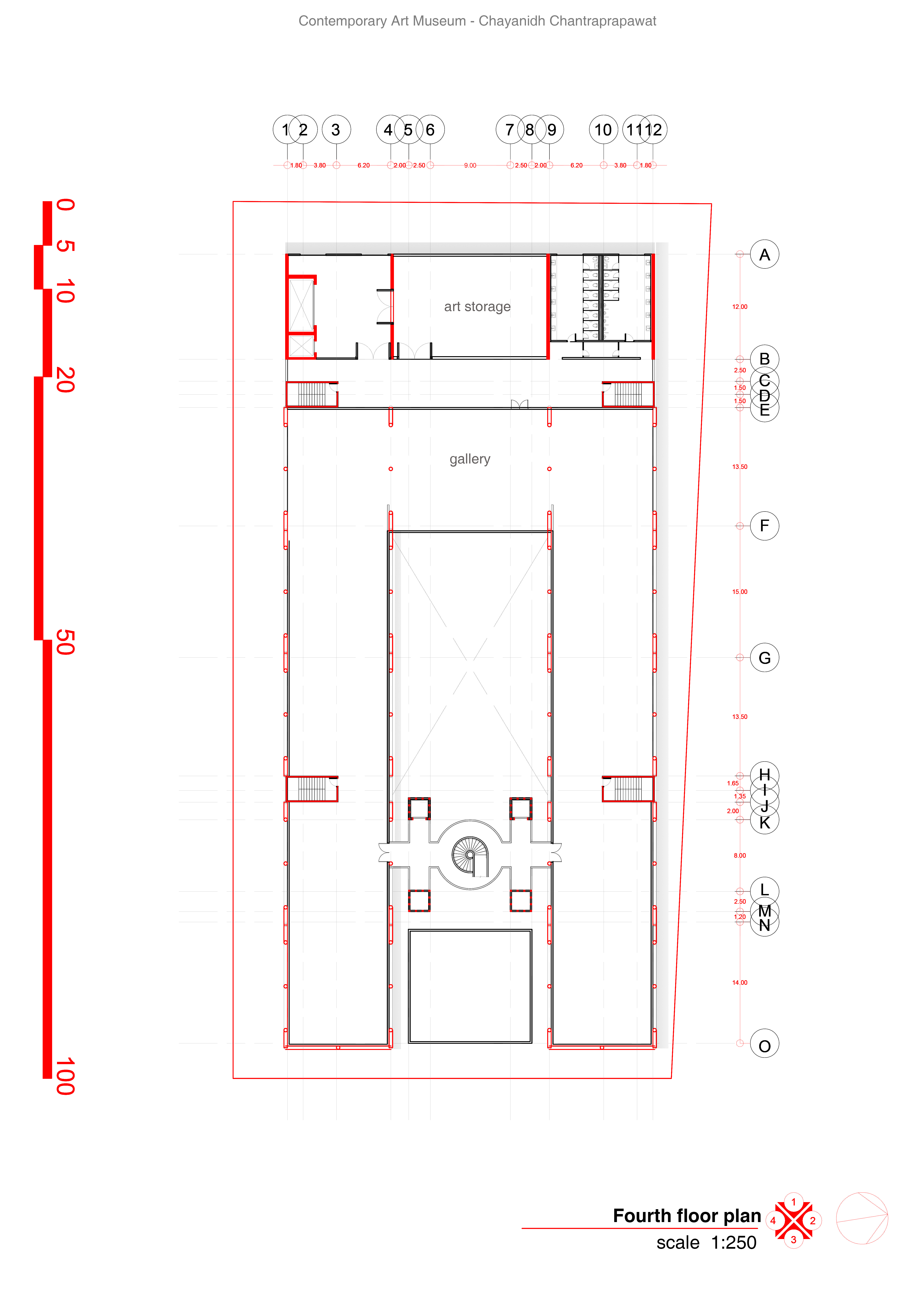
Public Art Art Museum



Project year: 2022
Category: Educational Project





The project’s main purpose is to create a space that responds and connect to the surrounding area apart from the main roads by applying concepts and characteristics unique to “Thai public space” in hopes that it will help people feel more thoroughly connected to the area

The project is located in the Pathum Wan district, the art and fashion center of Bangkok. The site is surrounded by public spaces and art showcases, from graffiti pieces to outdoor sculptures. Therefore, the main idea for the project is to create a space that responds and connect to the surrounding area by applying the ideas and characteristics of “Thai Public Space” as a main theme of the project.